Строительство и архитектура долго оставались консервативной отраслью. Бумажные чертежи, ручная доработка планов этажей, бесконечные правки для маркетинга и продаж — всё это годами считалось «нормой».
Но в 2025 году эта норма стремительно меняется. Искусственный интеллект (AI) становится не экспериментом, а рабочим инструментом, который напрямую влияет на сроки, себестоимость и качество проектов.
Разберёмся, как именно ИИ используется в строительстве и архитектуре, какие боли он закрывает и почему девелоперы и архитектурные бюро все чаще передают такие решения на IT-аутсорс.
Главные боли отрасли, о которых редко говорят вслух
За фасадом красивых рендеров и презентаций скрывается реальность, с которой сталкиваются почти все участники рынка.
Архитектурные чертежи часто поступают из разных источников: от проектных институтов, подрядчиков, бюро. Они отличаются по стилю, качеству и уровню детализации. Один файл может быть перегружен техническими элементами, другой — иметь низкое разрешение, третий — не соответствовать визуальным стандартам компании.
Дальше начинается ручная работа: архитекторы, дизайнеры или подрядчики часами «чистят» планы этажей, удаляют лишние линии, выравнивают подписи, перекрашивают квартиры, подгоняют всё под требования маркетинга. Каждая правка — это время, деньги и риск ошибки.
В результате:
- сроки подготовки материалов затягиваются
- бюджеты на дизайн растут незаметно, но постоянно
- сотрудники заняты рутиной вместо работы с ценностью
- любая ошибка тиражируется во всех каналах
Эти проблемы стали настолько привычными, что многие компании воспринимают их как неизбежность. Но именно здесь искусственный интеллект перестаёт быть модным словом и становится реальным бизнес-инструментом, который увеличивает эффективность работы.
Как ИИ меняет работу с архитектурными чертежами
Современные AI-алгоритмы работают не «в целом», а с конкретными задачами. В архитектуре ключевым направлением стало компьютерное зрение — способность системы анализировать изображения так же, как это делает человек, но быстрее и без усталости.
ИИ умеет распознавать типы стен, границы помещений, текстовые обозначения,
повторяющиеся элементы и многое другое. На основе этого он автоматически удаляет визуальный шум, выделяет только значимые элементы, приводит чертежи к единому стилю, подготавливает изображения под разные задачи.
Вместо ручной обработки каждого плана появляется масштабируемый процесс, который одинаково хорошо работает как с одним домом так и с сотнями этажей в разных жилых комплексах.
Вместо часов и дней ручной работы ИИ предлагает минуты автоматизированной обработки.
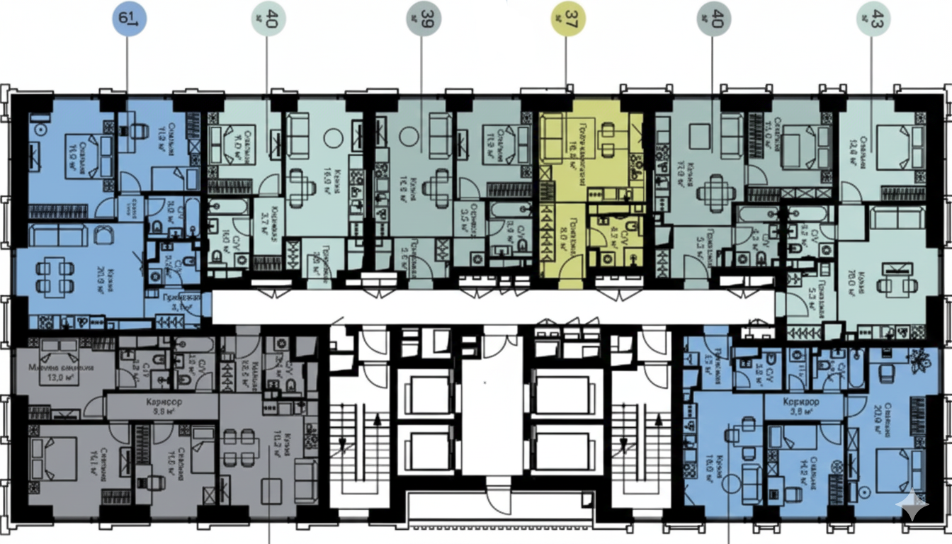
ArchReal: практический пример применения ИИ в архитектуре
Один из показательных наших проектов — проект ArchReal, веб-приложение для автоматизации и визуализации планов этажей жилых зданий. Проект ArchReal — это наглядный пример того, как искусственный интеллект может быть встроен в повседневные процессы подрядчиков и архитектурных бюро.

Как работает ArchReal на практике
ArchReal полностью исключает ручной труд при преобразовании архитектурных чертежей в готовые визуальные материалы. Система принимает на вход практически любые исходные изображения — даже те, которые ранее считались «непригодными» без долгой ручной доработки.
На первом этапе ИИ очищает изображение: убирает цвета, фон, второстепенные линии и оставляет только базовую структуру плана этажа. Чертёж превращается в четкий, понятный черно-белый план.
Далее алгоритмы анализируют содержание и сохраняют только ключевые элементы:
- межквартирные и межкомнатные стены
- площади помещений
- плашки с номерами квартир
- количество комнат и общую площадь
После этого система автоматически применяет визуальные правила. Межквартирные стены заливаются черным цветом, межкомнатные — полупрозрачным, каждая квартира получает уникальный цвет исходя из количества комнат. Инженерные стояки остаются белыми с черной обводкой, чтобы не теряться на фоне.
Финальный этап — автоматическая нарезка. ArchReal формирует готовые файлы этажей и отдельные JPG-файлы каждой квартиры, вырезка осуществляется строго по границам несущих стен
В результате получается полностью готовый продукт, не требующий доработки дизайнером.
Где это используется на практике
Главное преимущество таких решений — не в технологии, а в результате.
Маркетинговые отделы получают готовые визуалы, которые можно сразу размещать на сайте, в буклетах и презентациях. Архитекторы избавляются от рутинной работы и могут сосредоточиться на проектировании. Руководство получает предсказуемые сроки и контроль качества.
Кроме того, единый визуальный стандарт упрощает масштабирование: новые объекты не требуют пересборки процессов — система просто обрабатывает новые данные по тем же правилам.
Готовые материалы сразу подходят для:
- сайтов жилых комплексов
- маркетинговых буклетов
- презентаций для инвесторов
- печатной продукции
- онлайн-каталогов квартир
Без доработок, без дизайнерских правок, без потери времени.
Почему бизнес выбирает AI-решения вместо ручной работы
Ручная обработка всегда упирается в человеческий ресурс. Люди устают, ошибаются, работают с разной скоростью и по-разному интерпретируют требования.
ИИ же обеспечивает стабильное качество результата и минимизация ошибок, единый визуальный стандарт для всех проектов, прогнозируемые сроки и сокращение сроков подготовки материалов в разы, быстрая масштабируемость под новые объекты, снижение затрат на дизайнеров и архитекторов.
В условиях высокой конкуренции это становится не преимуществом, а необходимостью.
ИИ в строительстве и архитектуре — это не про «замену людей», а про освобождение специалистов от рутины и фокус на действительно ценной работе.
Роль IT-аутсорсинга: почему такие проекты не делают «внутри»
Создание подобных AI-решений требует сочетания экспертизы в машинном зрении, веб-разработке, UX и понимания бизнес-процессов в строительстве.
Содержать такую команду внутри компании подрядчика экономически нецелесообразно. Гораздо эффективнее работать с аутсорс IT-партнером, который:
- уже имеет готовые технологические наработки
- понимает реальные боли отрасли
- умеет быстро запускать и масштабировать решения
- берёт на себя поддержку и развитие продукта
Именно такой подход позволяет бизнесу получать результат, а не эксперимент.
Вывод: ИИ в строительстве — это про деньги, сроки и качество, а не про эксперимент
Искусственный интеллект в архитектуре и строительстве перестал быть будущим — он уже работает здесь и сейчас. Проекты вроде ArchReal показывают, как AI превращается в понятный инструмент, который:
- сокращает издержки
- ускоряет вывод объектов на рынок
- повышает качество визуальных материалов
- снижает зависимость от человеческого фактора
Проекты вроде ArchReal наглядно показывают, как AI-технологии превращаются в реальный инструмент роста, а не просто тренд из презентаций.
Компании, которые внедряют такие решения сегодня, завтра будут задавать стандарты отрасли.
Хотите внедрить ИИ в ваш бизнес?
Компания «Онтид Софт» выступает вашим практическим проводником в мир измеримого ИИ. Мы не продаем «нейросети». Мы находим точки роста в вашем бизнесе и внедряем точечные AI-решения, которые начинают приносить экономический эффект в кратчайшие сроки.
Вы можете более подробно ознакомиться с некоторыми нашими проектами реализованными с ИИ
Давайте обсудим, какой из ваших процессов можно усилить искусственным интеллектом уже в следующем квартале.
Если хотите, чтобы ИИ работал на вашу прибыль, а не оставался дорогой игрушкой, то напишите нам слово «Архитектура», и мы бесплатно проведем диагностику ваших бизнес-процессов и покажем, где внедрение ИИ даст максимальный эффект.